To Let
                        6th Floor, 
 The Brinell Building, 
 30 Station Street, 
 Brighton  BN1 4RB
                    
                    
                        Back to Results
                    
                Offices
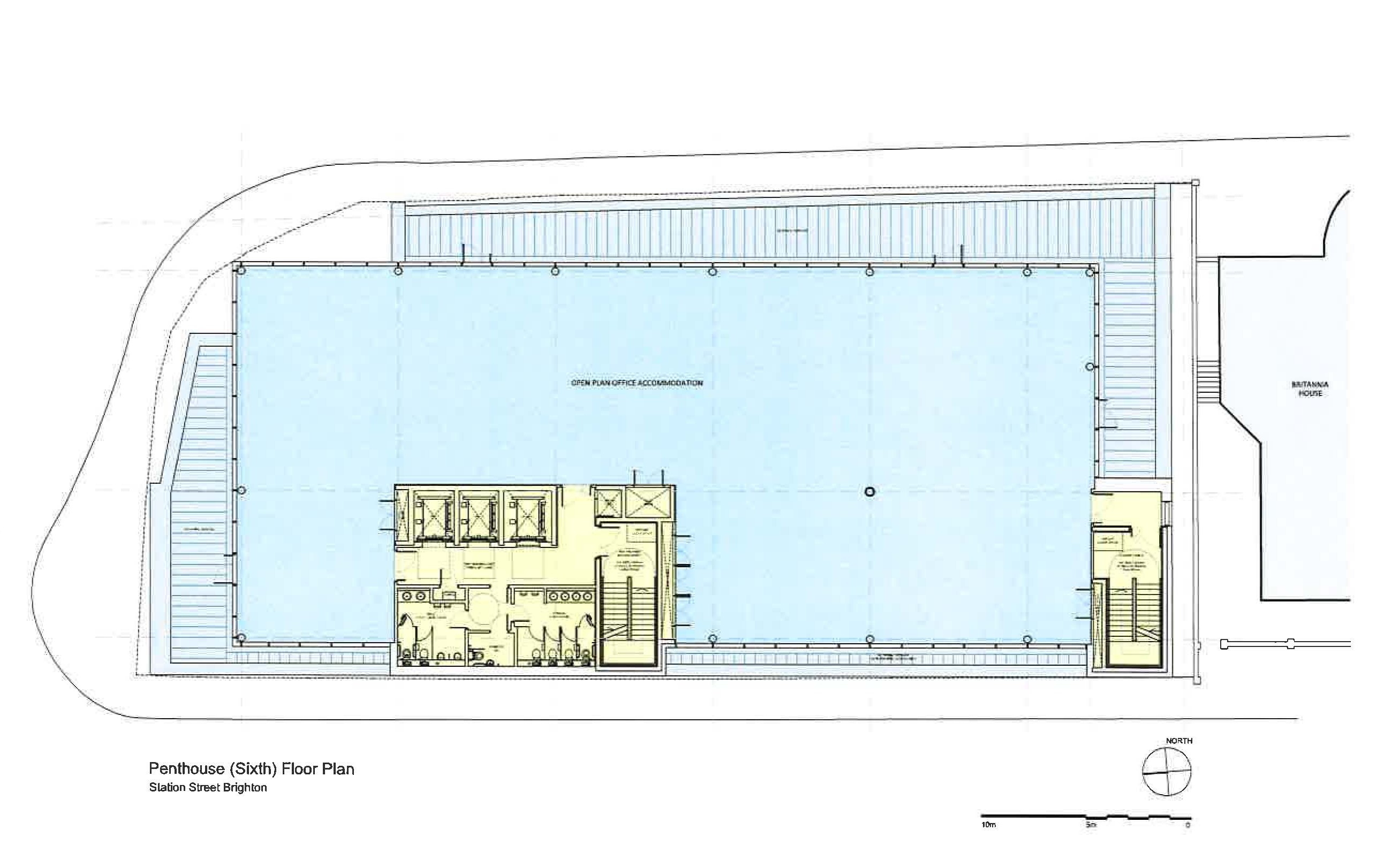
7,266 of 8,986 Sq Ft (675.01 of 834.8 Sq M)
- Comprising a superb penthouse office suite
 - BREEAM 'Excellent' environmental rating
 - Fitted to an exceptionally high standard throughout to include kitchen, break out areas, and meeting rooms
 - Wrap around private roof terrace providing exceptional coastal and cityscape views
 - Full access raised floors and VRF air-conditioning
 - Secure underground parking and cycle facilities
 - Changing rooms and shower facilities
 - Located close to Brighton station
 
Location
Brighton and Hove is a vibrant and well connected city on the South Coast, offering an exceptional quality of life and a strong commercial base. The city benefits from a diverse economy, excellent transport links to London and Gatwick Airport, and a highly skilled workforce, making it an attractive location for businesses across the creative, digital, professional, and financial sectors.
Description
                            The Brinell Building provides some of Brighton's finest modern office accommodation, designed to meet the demands of today's occupiers. This landmark development delivers exceptional Grade A workspace arranged over seven floors, with the subject premises located on the 6th /top floor of the building.
The space benefits from excellent natural light, high-quality finishes and a mix of easily demountable and spacious cellularised working,  and open plan layouts to suit a range of occupier requirements. The building features a striking double-height reception, secure cycle storage, shower facilities and a large wrap around private roof terrace providing fabulous coastal views to the south, and cityscape out towards the South Downs from the north.
Featuring a Grade A specification including:
- Full access raised floors and VRF air-conditioning
- Floor-to-ceiling glazing with excellent natural light
- BREEAM 'Excellent' environmental rating
- 2 x Private roof terraces with cityscape and sea views
- Secure underground parking and cycle facilities
- Contemporary double-height entrance and reception
                        
Accommodation
The accommodation has the following approximate floor areas (IPMS-3):
| Description | Sq Ft | Sq M | 
|---|---|---|
| 6th Floor | 7226 | 671.3 | 
| 6th Floor Balcony | 1720 | 159.79 | 
| Total | 8,946 | 831.09 | 
Energy Performance Rating
We understand the property has an EPC rating of A.
Planning
A new Use Classes Order (UCO) came into effect on 1st September 2020. Under the new UCO a new Use Class E was introduced to cover commercial, business and service uses. Use Class E encompasses A1, A2, A3, B1 and some D1 and D2 uses under the former UCO. We therefore understand that the premises benefit from Class E 'Commercial Business and Service' use within the Use Classes Order 2020.
Taxation
The premises will require a re-assessment for the purpose of business rates. More information can be given upon request.
Terms
                                Available by way of sub-lease under our clients head lease of the premises expiring  in 2034, and subject to a tenant only break option in 2029. The rent passing is circa £36 psf exclusive.
                            
VAT
Rents and prices are quoted exclusive but may be subject to VAT.
Legal Fees
Each party to bear their own legal costs incurred.
Anti-Money Laundering Regulations 2017
                                In accordance with current Government legislation, we are legally required to conduct Anti-Money Laundering (AML) checks on all prospective purchasers or tenants where the transaction involves a capital value of €15,000 (EUR) or more, or a rental value of €10,000 (EUR) per calendar month or greater.
This process includes verifying identity, as well as confirming the source and availability of funds. Please note that we must obtain and record this information before any transaction can be formalised or contracts exchanged.
                            
Flude Property Consultants for themselves and for the vendors or lessors of this property whose agents they are give notice that: i) these particulars are set out in good faith and are believed to be correct but their accuracy cannot be guaranteed and they do not form any part of any contract; ii) no person in the employment of Flude Property Consultants has any authority to make or give any representation or warranty whatsoever in relation to this property.
Please note that whilst we endeavour to confirm the prevailing approved planning use for properties we market, we can offer no guarantees in this regard. Planning information is stated to the best of our knowledge. Interested parties are advised to make their own enquiries to satisfy themselves in respect of planning issues.
We advise interested parties to make their own enquiries to the local authority to verify the above and the level of business rates payable in view of possible transitional arrangements and any reliefs.